Verkocht onder voorbehoud:Prinsessenpark 9, 3331 GZ Zwijndrecht - Foto
Verkocht onder voorbehoud
+50

Prinsessenpark 9 3331 GZ Zwijndrecht € 525.000,- k.k.

  • Woonhuis
  • 5 kamers
  • 4 slaapkamers
  • 1 badkamers
  • Bouwjaar 1987
  • 202 m² perceeloppervlakte
  • 118 m² gebruiksoppervlakte
  • C Energielabel C

Beschrijving

Prinsessenpark 9 – Moderne luxe, verrassend veel ruimte en helemaal instapklaar!

Wonen aan het Prinsessenpark 9 betekent kiezen voor comfort, ruimte en een smaakvolle afwerking. Deze moderne 2-onder-1-kapwoning is tot in de puntjes verzorgd. Bij binnenkomst valt meteen de ruime en lichte woonkamer op. Door het doorbreken van de garage is er een prachtige extra ruimte ontstaan die naadloos aansluit op de living. Een plek waar je alle kanten mee op kunt: werk je graag vanuit huis, heb je een creatieve hobby of wil je gewoon een extra relaxplek? De ruimte is er uitstekend geschikt voor.

De open keuken is een echte blikvanger. Luxe uitgevoerd, voorzien van alle moderne apparatuur en perfect gepositioneerd om gezellig te koken terwijl je in contact blijft met de rest van het gezin of je gasten.

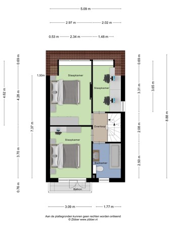
Op de eerste verdieping wachten drie slaapkamers, waarvan de twee kamers aan de achterzijde extra royaal zijn dankzij de brede dakkapel. De nette, verzorgde badkamer completeert deze verdieping en biedt alles wat je nodig hebt. Op de tweede verdieping is er nog een ruime slaapkamer.

De oprit biedt ruimte om op eigen terrein te parkeren, en de heerlijke achtertuin ins onderhoudsvriendelijk en maakt dat je hier in alle rust kunt genieten van het buitenleven.

Prinsessenpark 9 is een woning die modern is afgewerkt, instapklaar is en ideaal voor wie ruimte zoekt zonder te hoeven klussen. Hier woon je royaal, comfortabel en op een prachtige kindvriendelijke plek in Zwijndrecht aan een doodlopende weg.

Indeling

HAL
Entree met toiletruimte, meterkast, trap naar de verdieping en toegang tot de woonkamer.

WOONKAMER
De woonkamer is uitgevoerd met een schuifpui naar de tuin en trapkast. En er is een doorgang naar een voormalige kantoorruimte welke nu in gebruik is als relaxruimte. (voormalig gedeelte van de garage)

KEUKEN (2022)
Luxe keuken welke is voorzien van de volgende inbouwapparatuur:
- koelkast
- vriezer
- vaatwasser
- inductiekookplaat met afzuiging (Bora)
- koffiezetapparaat
- oven (stoom & heteluchtoven)

Eerste verdieping

De gehele eerste verdieping is voorzien van een PVC vloer.

OVERLOOP
Met toegang tot de vertrekken en vaste trap naar de verdieping.

SLAAPKAMER 1
Ruime slaapkamer aan de achterzijde met kunststof dakkapel voorzien van rolluik.

SLAAPKAMER 2
Ruime slaapkamer aan de voorzijde met openslaande deuren naar het balkon

BADKAMER
Moderne badkamer met wastafelmeubel, tweede toilet en ligbad voorzien van douchecabine.

SLAAPKAMER 3
Ruime slaapkamer aan de achterzijde met kunststof dakkapel voorzien van rolluik.

Tweede verdieping

Gehele tweede verdieping voorzien van PVC vloer.

VOORZOLDER
Met aansluiting wasapparatuur en opstelling combiketel (2017 - binnenzijde in 2022 geheel vervangen). Bergruimte achter de schuifdeuren en toegang tot bergzolder.

SLAAPKAMER 4
Ruime slaapkamer met dakvenster en bergruimte achter de knieschotten. Deze slaapkamer is voorzien van een daikin airconditioning welke naast koelen ook kan verwarmen.

Bijzonderheden

- De woning is opgemeten conform de branche brede meetinstructie. Deze meetinstructie is gebaseerd op de NEN2580. De meetinstructie is bedoeld om een meer eenduidiger manier van meten toe te passen voor het geven van een indicatie van de gebruiksoppervlakte. De meetinstructie sluit verschillen in meetuitkomsten niet volledig uit, door bijvoorbeeld interpretatieverschillen, afrondingen of beperkingen bij het uitvoeren van de meting.

- Bezichtigingen uitsluitend op afspraak met en via Bremmer Makelaars

- Oplevering: in overleg

- Voor de maatvoering verwijzen wij naar de plattegronden elders op de website of naar de brochure.

- De notariële eigendomsoverdracht zal plaatsvinden bij de notaris van de kopers keuze, mits deze is gelegen in een straal van 15km rondom de woning. Verkopers eventuele meerkosten (zoals reiskosten, notariële volmacht, e.d.) als gevolg van kopers notariskeuze buiten dit gebied komen volledig voor rekening van koper.

Kaart

Kenmerken

Overdracht

Referentienummer
1092
Vraagprijs
€ 525.000,- k.k.
Status
Verkocht onder voorbehoud
Aanvaarding
In overleg
Aangeboden sinds
Vrijdag 28 november 2025
Laatste wijziging
Donderdag 18 december 2025

Bouw

Type object
Woonhuis, eengezinswoning, geschakelde twee onder een kap woning
Soort bouw
Bestaande bouw
Bouwperiode
1987
Dakbedekking
Dakpannen
Type dak
Zadeldak
Isolatievormen
Volledig geïsoleerd

Oppervlaktes en inhoud

Perceeloppervlakte
202 m²
Woonoppervlakte
118 m²
Inhoud
466 m³
Oppervlakte overige inpandige ruimten
13 m²
Oppervlakte externe bergruimte
1,9 m²
Oppervlakte gebouwgebonden buitenruimte
7 m²

Indeling

Aantal bouwlagen
3
Aantal kamers
5 (waarvan 4 slaapkamers)
Aantal badkamers
1 (en 1 apart toilet)

Locatie

Ligging
Aan rustige weg
Dichtbij openbaar vervoer
In centrum
In woonwijk
Nabij school

Tuin

Type
Achtertuin
Hoofdtuin
Ja
Oriëntering
Noord west
Staat
Normaal
Tuin 2 - Type
Voortuin
Tuin 2 - Oriëntering
Zuidoost

Energieverbruik

Energielabel
C

CV ketel

CV ketel
HR-combiketel
Warmtebron
Gas
Bouwjaar
2017
Eigendom
Eigendom

Uitrusting

Aantal parkeerplaatsen
1
Warm water
CV-ketel
Verwarmingssysteem
Airconditioning
Centrale verwarming
Heeft airco
Ja
Heeft kabel-tv
Ja
Tuin aanwezig
Ja
Telefoonaansluiting aanwezig
Ja
Beschikt over een internetverbinding
Ja
Heeft rolluiken
Ja
Heeft schuur/berging
Ja
Heeft een dakraam
Ja
Heeft zonwering
Ja

Kadastrale gegevens

Kadastrale aanduiding
Zwijndrecht B 5765
Perceeloppervlakte
202 m²
Omvang
Geheel perceel
Eigendomsituatie
Eigen grond

Brochure(s) en overige bijlagen

Prinsessenpark 9, 3331 GZ ZWIJNDRECHT (1) Download