Verkocht onder voorbehoud:Ballade 51, 3335 EL Zwijndrecht - Foto
Verkocht onder voorbehoud
+36

Ballade 51 3335 EL Zwijndrecht € 425.000,- k.k.

  • Woonhuis
  • 5 kamers
  • 4 slaapkamers
  • 1 badkamers
  • Bouwjaar 1997
  • 101 m² perceeloppervlakte
  • 102 m² gebruiksoppervlakte
  • A+ Energielabel A+

Beschrijving

Te koop: deze mooie eengezinswoning aan de Ballade 51! Geen verbouwingen, geen concessies, maar gewoon instapklaar wonen in een moderne eengezinswoning.

De woning is onder andere voorzien van een sfeervolle tuingerichte woonkamer en een moderne keuken: strak, eigentijds en van alle gemakken voorzien. Boven wachten maar liefst vier volwaardige slaapkamers, ideaal voor een gezin, thuiswerken of die langgekoesterde inloopkast. De badkamer is modern en fris, precies zoals je dat vandaag de dag wilt. En buiten? Daar verleng je het seizoen moeiteloos onder de overkapping aan de achtergevel – of het nu zomer is of niet.

De ligging maakt het plaatje compleet. In de geliefde wijk Heer Oudelands Ambacht woon je rustig, maar met alles binnen handbereik. Winkels, basisscholen en voortgezet onderwijs, openbaar vervoer, kinderboerderij, zwembad en het Develpark: alles ligt op korte afstand. Dit is wonen met comfort, gemak én kwaliteit.

Nieuwsgierig geworden? Wacht niet te lang. Plan vandaag nog een bezichtiging en ontdek zelf waarom Ballade 51 jouw volgende thuis kan zijn.

Indeling

ENTREE
Hal met meterkast en toegang tot de woonkamer.

WOONKAMER
Tuingerichte woonkamer met gezellige haard (op stoom), deur naar de tuin en laminaatvloerafwerking

KEUKEN
Moderne keuken welke is voorzien van de volgende inbouwapparatuur
- 5 pits gaskookplaat
- afzuigkap
- vaatwasser
- koelkast
- combioven
De keukennis gesitueerd aan de voorzijde.

HAL
Met trap naar de verdieping en toiletruimte.

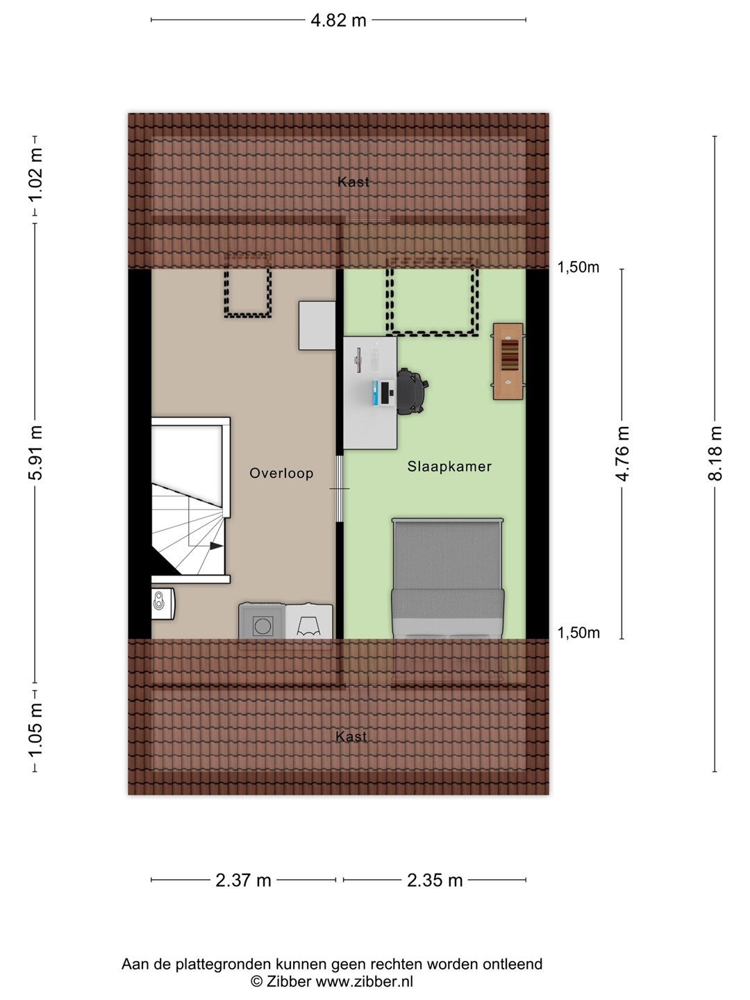
Eerste verdieping

OVERLOOP
Met toegang tot de vertrekken en vaste trap naar de verdieping

SLAAPKAMER 1
Ruime slaapkamer aan de achterzijde met laminaatvloer afwerking.

SLAAPKAMER 2
Slaapkamer aan de voorzijde met laminaatvloer.

BADKAMER
Moderne badkamer met douchecabine vv stortdouche, 2e toilet en wastafelmeubel.

SLAAPKAMER 3
Slaapkamer aan de achterzijde met laminaatvloerafwerking

Tweede verdieping

VOORZOLDER
Ruime voorzolder welke is opgedeeld in een speelhoek (kan ook prima studeer of werkruimte zijn) en een technisch gedeelte met zonneboiler, aansluitingen wasapparatuur en opstelling combiketel.

SLAAPKAMER 4
Ruime slaapkamer met laminaatvloer, bergruimte achter de knieschotten en velux dakvenster.

Bijzonderheden

- 7 zonnepanelen

- 2 tbv de boiler

- De woning is opgemeten conform de branchebrede meetinstructie. Deze meetinstructie is gebaseerd op de NEN2580. De meetinstructie is bedoeld om een meer eenduidiger manier van meten toe te passen voor het geven van een indicatie van de gebruiksoppervlakte. De meetinstructie sluit verschillen in meetuitkomsten niet volledig uit, door bijvoorbeeld interpretatieverschillen, afrondingen of beperkingen bij het uitvoeren van de meting.

- Bezichtigingen uitsluitend op afspraak met en via Bremmer Makelaars

- Oplevering: in overleg

- Voor de maatvoering verwijzen wij naar de plattegronden elders op de website of naar de brochure.

- De notariële eigendomsoverdracht zal plaatsvinden bij de notaris van de kopers keuze, mits deze is gelegen in een straal van 15km rondom de woning. Verkopers eventuele meerkosten (zoals reiskosten, notariële volmacht, e.d.) als gevolg van kopers notariskeuze buiten dit gebied komen volledig voor rekening van koper.

Kaart

Kenmerken

Overdracht

Referentienummer
1094
Vraagprijs
€ 425.000,- k.k.
Status
Verkocht onder voorbehoud
Aanvaarding
In overleg
Aangeboden sinds
Vrijdag 12 december 2025
Laatste wijziging
Woensdag 31 december 2025

Bouw

Type object
Woonhuis, eengezinswoning, tussenwoning
Soort bouw
Bestaande bouw
Bouwperiode
1997
Dakbedekking
Dakpannen
Type dak
Zadeldak
Isolatievormen
Dakisolatie
Dubbel glas
Muurisolatie
Spouwmuren
Vloerisolatie
Volledig geïsoleerd

Oppervlaktes en inhoud

Perceeloppervlakte
101 m²
Woonoppervlakte
102 m²
Inhoud
360 m³
Oppervlakte externe bergruimte
8 m²
Oppervlakte gebouwgebonden buitenruimte
14 m²

Indeling

Aantal bouwlagen
3
Aantal kamers
5 (waarvan 4 slaapkamers)
Aantal badkamers
1 (en 1 apart toilet)

Locatie

Ligging
Aan rustige weg
Dichtbij openbaar vervoer
In woonwijk
Nabij school
Nabij snelweg

Tuin

Type
Voortuin
Hoofdtuin
Ja
Oriëntering
Zuid-west
Heeft een achterom
Ja
Tuin 2 - Type
Achtertuin
Tuin 2 - Oriëntering
Noord-oost
Tuin 2 - Heeft een achterom
Ja
Tuin 2 - Staat
Normaal

Energieverbruik

Energielabel
A+

CV ketel

CV ketel
Remeha
Warmtebron
Gas
Bouwjaar
2008
Combiketel
Ja
Eigendom
Eigendom

Uitrusting

Warm water
CV-ketel
Zonneboiler
Zonnecollectoren
Verwarmingssysteem
Centrale verwarming
Zonnecollectoren
Ventilatie methode
Mechanische ventilatie
Natuurlijke ventilatie
Heeft kabel-tv
Ja
Tuin aanwezig
Ja
Beschikt over een internetverbinding
Ja
Heeft een dakraam
Ja
Heeft zonwering
Ja
Heeft zonnepanelen
Ja
Heeft zonnecollectoren
Ja
Heeft ventilatie
Ja

Kadastrale gegevens

Kadastrale aanduiding
Zwijndrecht E 3699
Perceeloppervlakte
101 m²
Omvang
Geheel perceel
Eigendomsituatie
Eigen grond

Media

Video

Plattegronden

Brochure(s) en overige bijlagen

Ballade 51, 3335 EL ZWIJNDRECHT (1) Download