Nieuw in verkoop:Geldelozepad 135, 3311 WD Dordrecht - Foto
Nieuw in verkoop
+38

Geldelozepad 135 3311 WD Dordrecht € 365.000,- k.k.

  • Woonhuis
  • 3 kamers
  • 3 slaapkamers
  • 1 badkamer
  • Bouwjaar 1910
  • 69 m² perceeloppervlakte
  • 89 m² gebruiksoppervlakte
  • C Energielabel C

Beschrijving

Op loopafstand van de historische binnenstad gelegen, sfeervolle, instapklare tussenwoning.

Deze gezellige woning is volledig gemoderniseerd en is o.a. voorzien van een luxe, moderne badkamer. Door de nokverhoging aan de achterzijde van de woning heeft de woning verrassend veel ruimte.

De woning is in de afgelopen jaren goed onderhouden, het gehele dak is vernieuwd, alle vloeren en het dak zijn geïsoleerd, de gehele woning is voorzien van HR + glas.

De ligging is geweldig met het historische centrum op loopafstand met winkels restaurants en NS station terwijl er ook een goede bereikbaarheid is t.o.v. de uitvalswegen (A16).

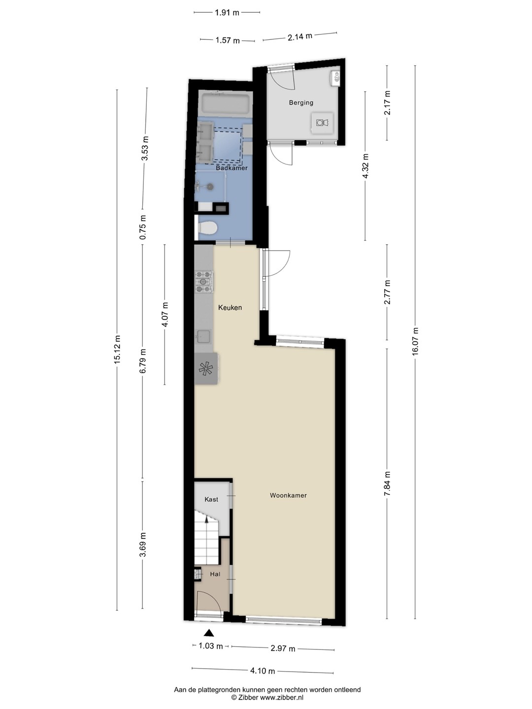
Indeling

Entree:
Hal met meterkast en trap naar de verdieping.

Woonkamer:
Sfeervolle woonkamer.

Keuken:
Nette open keuken voorzien van inbouwapparatuur en deur naar de tuin.

Badkamer:
Moderne badkamer (ca. 2020) voorzien van ligbad, inloopdouche, wastafelmeubel en toilet. Door de lichtkoepel is dit een heerlijk lichte ruimte.

Berging:
Hier bevindt zich de aansluiting voor was apparatuur. Tevens heeft u hier toegang tot het achterom.

Eerste verdieping

Overloop:
Toegang tot de slaapkamers en toegang tot de tussenhal met trap naar de tweede verdieping.

Slaapkamer 1:
Ruime slaapkamer gelegen aan de achterzijde van de woning. Deze kamer is voorzien van een airco voor verwarmen en koelen.

Slaapkamer 2:
Ruime slaapkamer voorzien van dakkapel, gelegen aan de voorzijde van de woning.

Tweede verdieping

Vaste trap naar de tweede verdieping.

Slaapkamer 3:
Ruime slaapkamer v.v. dakkapel en extra bergruimte. Deze kamer is voorzien van een airco voor verwarmen en koelen.

Tuin

Sfeervolle stadstuin.

Bijzonderheden

- CV- ketel is een huur ketel (€ 41,40 per maand)
- Parkeren met een parkeervergunning (sector C), kosten € 84,= per half jaar
- Oplevering in overleg (indicatie September 2026)
- Kunststof dakkapellen voorzien van HR++ glas

- Gezien de leeftijd van het pand zal er een ouderdomsclausule worden opgenomen in de koopovereenkomst.

- De woning is opgemeten conform de branchebrede meetinstructie. Deze meetinstructie is gebaseerd op de NEN2580. De meetinstructie is bedoeld om een meer eenduidiger manier van meten toe te passen voor het geven van een indicatie van de gebruiksoppervlakte. De meetinstructie sluit verschillen in meetuitkomsten niet volledig uit, door bijvoorbeeld interpretatieverschillen, afrondingen of beperkingen bij het uitvoeren van de meting.

- Bezichtigingen uitsluitend op afspraak met en via Bremmer Makelaars

- Oplevering: in overleg

- Voor de maatvoering verwijzen wij naar de plattegronden elders op de website of naar de brochure.

- De notariële eigendomsoverdracht zal plaatsvinden bij de notaris van de kopers keuze, mits deze is gelegen in een straal van 15km rondom de woning. Verkopers eventuele meerkosten (zoals reiskosten, notariële volmacht, e.d.) als gevolg van kopers notariskeuze buiten dit gebied komen volledig voor rekening van koper.

Kaart

Kenmerken

Overdracht

Referentienummer
1156
Vraagprijs
€ 365.000,- k.k.
Status
Nieuw in verkoop
Aanvaarding
In overleg
Aangeboden sinds
Vrijdag 24 april 2026

Bouw

Type object
Woonhuis, eengezinswoning, tussenwoning
Soort bouw
Bestaande bouw
Bouwperiode
1910
Dakbedekking
Bitumen
Dakpannen
Type dak
Samengesteld
Isolatievormen
HR-glas
Muurisolatie
Vloerisolatie

Oppervlaktes en inhoud

Perceeloppervlakte
69 m²
Woonoppervlakte
89 m²
Inhoud
329 m³
Oppervlakte overige inpandige ruimten
4 m²

Indeling

Aantal bouwlagen
3
Aantal kamers
3 (waarvan 3 slaapkamers)
Aantal badkamers
1

Tuin

Type
Afgesloten tuin
Hoofdtuin
Ja
Oriëntering
Noorden
Heeft een achterom
Ja
Staat
Normaal

Energieverbruik

Energielabel
C

CV ketel

Warmtebron
Gas
Combiketel
Ja
Eigendom
Huur

Uitrusting

Warm water
CV-ketel
Verwarmingssysteem
Airconditioning
Centrale verwarming
Badkamervoorzieningen
Inloopdouche
Ligbad
Toilet
Wastafelmeubel
Heeft airco
Ja
Tuin aanwezig
Ja
Beschikt over een internetverbinding
Ja
Heeft schuur/berging
Ja

Kadastrale gegevens

Kadastrale aanduiding
Dordrecht D 4545
Perceeloppervlakte
69 m²
Omvang
Geheel perceel
Eigendomsituatie
Eigen grond