Nieuw in verkoop:Beethovenlaan 54, 3335 BA Zwijndrecht - Foto
Nieuw in verkoop
+53

Beethovenlaan 54 3335 BA Zwijndrecht € 399.000,- k.k.

  • Woonhuis
  • 4 kamers
  • 3 slaapkamers
  • 1 badkamers
  • Bouwjaar 1986
  • 133 m² perceeloppervlakte
  • 107 m² gebruiksoppervlakte
  • A Energielabel A

Beschrijving

Instapklaar wonen in Heer Oudelands Ambacht!

Aan de Beethovenlaan 54 staat deze modern afgewerkte eengezinswoning met een ruime tuingerichte woonkamer, luxe keuken, drie slaapkamers, een moderne badkamer én een zonnige tuin met overkapping. De woning is op de begane grond voorzien van vloerverwarming en het kozijnwerk is geheel uitgevoerd in kunststof met isolatieglas. Hier hoef je alleen nog maar je meubels neer te zetten.

Bij binnenkomst valt direct de verzorgde afwerking op. De woonkamer is ruim opgezet en heerlijk licht door de grote raampartijen en de schuifpui richting de tuin. De moderne afwerking, de strakke vloer en de sfeervolle haard zorgen voor een warme en eigentijdse uitstraling. De open keuken sluit hier naadloos op aan en is luxe uitgevoerd.

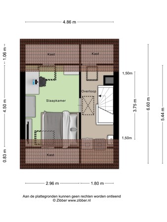
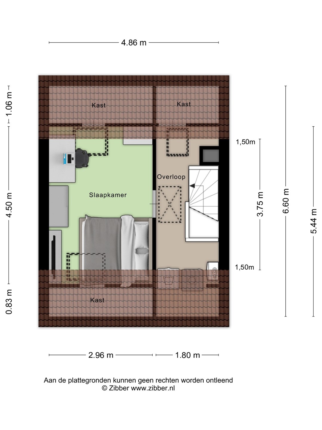
Op de eerste verdieping bevinden zich twee royale slaapkamers waarvan 1 met brede dakkapel en een moderne badkamer welke beschikt over een ligbad, een wastafelmeubel en een toilet. Op de zolder is er een ruime derde slaapkamer. Dankzij de dakramen aan zowel de voor- als achterzijde is ook deze verdieping aangenaam licht.

De achtertuin is zonnig en verzorgd aangelegd. De gezellige overkapping maakt het mogelijk om vrijwel het hele jaar door buiten te zitten. Een heerlijke plek om te ontspannen of om met vrienden en familie te genieten van lange zomeravonden.

Omgeving
De woning ligt in de geliefde wijk Heer Oudelands Ambacht in Zwijndrecht. Een rustige, groene woonomgeving met alle voorzieningen in de buurt. Scholen, winkels, sportvoorzieningen en openbaar vervoer zijn snel bereikbaar. Ook de uitvalswegen richting Rotterdam en Dordrecht liggen op korte afstand.

Kortom: een moderne en instapklare woning met diverse extra's en gelegen op een fijne plek waar je jarenlang met plezier kunt wonen! Zie jij jezelf hier al wonen? Plan dan snel een bezichtiging en ontdek zelf de ruimte, sfeer en het comfort van deze instapklare woning aan de Beethovenlaan 54.

Indeling

HAL
Entree met meterkast, toiletruimte en trap naar de verdieping.

KEUKEN
Luxe uitgevoerde keuken voorzien van de volgende inbouwapparatuur:
- koelkast
- vriezer
- combioven
- inductie kookplaat met afzuiging
- vaatwasser

WOONKAMER
Ruime tuingerichte woonkamer met smaakvolle gietvloer met vloerverwarming. De woonkamer is voorzien van een schuifpui naar de tuin, een grote trapkast en een sfeervolle houtkachel.

PRAKTIJK
De voormalige berging is in gebruik als praktijkruimte en is voorzien van een airconditioning (koelen en verwarmen)

Eerste verdieping

OVERLOOP
Met toegang tot de vertrekken en vaste trap naar de verdieping.

SLAAPKAMER 1
Riante slaapkamer aan de achterzijde met grote dakkapel voorzien van elektrisch bedienbaar rolluik.

SLAAPKAMER 2
Ruime slaapkamer aan de voorzijde.

BADKAMER
Moderne badkamer met ligbad, wastafelmeubel en toilet.

Tweede verdieping

VOORZOLDER
Met aansluitingen wasapparatuur, opstelling combiketel (2015). Luik naar bergvliering.

SLAAPKAMER 3
Ruime zolderkamer met aan beide zijde een dakvenster (vv elektrisch bedienbare rolluiken), bergruimte achter de knieschotten en een airconditioning (koelen en verwarmen)

Bijzonderheden

- De woning is opgemeten conform de branchebrede meetinstructie. Deze meetinstructie is gebaseerd op de NEN2580. De meetinstructie is bedoeld om een meer eenduidiger manier van meten toe te passen voor het geven van een indicatie van de gebruiksoppervlakte. De meetinstructie sluit verschillen in meetuitkomsten niet volledig uit, door bijvoorbeeld interpretatieverschillen, afrondingen of beperkingen bij het uitvoeren van de meting.

- Bezichtigingen uitsluitend op afspraak met en via Bremmer Makelaars

- Voor de maatvoering verwijzen wij naar de plattegronden elders op de website of naar de brochure.

- De notariële eigendomsoverdracht zal plaatsvinden bij de notaris van de kopers keuze, mits deze is gelegen in een straal van 15km rondom de woning. Verkopers eventuele meerkosten (zoals reiskosten, notariële volmacht, e.d.) als gevolg van kopers notariskeuze buiten dit gebied komen volledig voor rekening van koper.

- Oplevering: eind mei 2026

Kaart

Kenmerken

Overdracht

Referentienummer
1131
Vraagprijs
€ 399.000,- k.k.
Status
Nieuw in verkoop
Aanvaarding
In overleg
Aangeboden sinds
Vrijdag 6 maart 2026

Bouw

Type object
Woonhuis, eengezinswoning, tussenwoning
Soort bouw
Bestaande bouw
Bouwperiode
1986
Dakbedekking
Dakpannen
Type dak
Zadeldak
Isolatievormen
Dakisolatie
HR-glas
Muurisolatie
Vloerisolatie

Oppervlaktes en inhoud

Perceeloppervlakte
133 m²
Woonoppervlakte
107 m²
Inhoud
353 m³
Oppervlakte externe bergruimte
4 m²
Oppervlakte gebouwgebonden buitenruimte
14 m²

Indeling

Aantal bouwlagen
3
Aantal kamers
4 (waarvan 3 slaapkamers)
Aantal badkamers
1 (en 1 apart toilet)

Locatie

Ligging
Dichtbij openbaar vervoer
In woonwijk
Nabij school
Nabij snelweg

Tuin

Type
Voortuin
Oriëntering
Noorden
Tuin 2 - Type
Achtertuin
Tuin 2 - Hoofdtuin
Ja
Tuin 2 - Oriëntering
Zuiden
Tuin 2 - Heeft een achterom
Ja
Tuin 2 - Staat
Normaal

Energieverbruik

Energielabel
A

CV ketel

CV ketel
HR Combiketel
Bouwjaar
2015
Combiketel
Ja

Uitrusting

Warm water
CV-ketel
Verwarmingssysteem
Airconditioning
Centrale verwarming
Houtkachel
Vloerverwarming (gedeeltelijk)
Zonnecollectoren
Ventilatie methode
Mechanische ventilatie
Natuurlijke ventilatie
Heeft airco
Ja
Heeft kabel-tv
Ja
Glasvezelaansluiting aanwezig
Ja
Tuin aanwezig
Ja
Telefoonaansluiting aanwezig
Ja
Beschikt over een internetverbinding
Ja
Heeft rolluiken
Ja
Heeft schuur/berging
Ja
Heeft een dakraam
Ja
Heeft een schuifpui
Ja
Heeft ventilatie
Ja

Kadastrale gegevens

Kadastrale aanduiding
Zwijndrecht E 2105
Perceeloppervlakte
133 m²
Omvang
Geheel perceel
Eigendomsituatie
Eigen grond